欢迎光临 【 江苏诚翔新能源有限公司 】 官方网站!

咨询热线:0511-88881863 / 88885833

VFM-40.5户内高压六氟化硫断路器


产品总述

       VFM-40.5型户内高压六氟化硫断路器(简称“VFM断路器”)是诚翔新能源生产的户内高压六氟化硫断路器。
       该产品适用于额定电压40.5kV,额定频率50Hz的三相交流系统中,可供工矿企业、发电厂、变电站等作电气设施的控制和保护之用。
       VFM断路器具有机械寿命长、开断能力强的特点,特别适用于切合电容器、电感及各种频繁操作的场所。

型号说明

使用环境

       海拔高度:不超过2000米(高海拔产品不超过4000米);
       空气温度:上限40℃,下限-25℃;日平均不超过35℃;
       空气相对湿度:日平均值不大于95%,月平均值不大于90%;
       饱和蒸气压:日平均值不大于2.2kPa,月平均值不大于1.8kPa;
       地震烈度:不超过8°;
       周围空气没有明显地受到尘埃、烟、腐蚀性和可燃性气体、蒸汽或盐雾的污染;
       在二次系统中感应的电磁干扰幅值不超过1.6kV。
       注:超出上述使用条件时,请用户与我公司协商确定。

产品特点

       1、无操作过电压
       SF6气体的固有特性与吹弧技术相结合,避免产生重燃和操作过电压。
       2、机械性能好
       配用CT100操作机构(西门子3AF技术),布局紧凑、结构简单,机械寿命高达10000次。
       3、操作轻巧、方便
       断路器采用丝杠螺母推进装置,在开关柜内可轻松移动。
       4、绝缘性能好
       满足高海拔、凝露和级污秽环境使用要求。
       5、耐腐蚀能力强
       机构零部件采用表面处理工艺和润滑技术,提高产品的耐磨损、抗腐蚀能力,保证产品在恶劣条件下使用的可靠性。
       6、导电性能好
       导电回路的零部件采用工艺处理,充分保证其优越的导电性能。
       7、性能稳定
       采用流水线生产方式,通过专用调试工装、检测设备、严格的质量管理程序等控制手段,保证产品性能稳定可靠。
       8、通能性强
       完善的配柜方案满足与KYN61-40.5、JYN-40.5、GBC-40.5、XGN17-40.5等开关柜相配。

产品参数

       VFM断路器符合相关标准的规定。主要技术参数(见下表):
序号 名称 单位 数据
1 额定电压 kV 40.5
2 额定绝缘水平 工频耐受电压(1min) kV 95
雷电冲击耐受电压(峰值) kV 185
3 额定电流 A 1250
1600
2000
4 额定短路开断电流 kA 31.5
5 额定短路关合电流 kA 80
6 额定峰值耐受电流(4s) kA 80
7 额定短时耐受电流(4s) kA 31.5
8 额定短路持续时间 S 4
9 额定操作顺序   分-0.3s-合分-180s-合分
10 额定单个电容器组开断电流 A 800
11 额定失步开断电流 kA 7.9
12 合闸时间 ms ≤150
13 分闸时间 ms ≤75
14 机械寿命 10000
15 额定短路电流开断次数 20
16 年漏气率 % ≤0.5
17 六氟化硫气体额定电压(20℃) MPa 0.65
18 闭锁压力(20℃) MPa 0.59
19 操作电压 V AC/DC110、AC/DC220

工作原理

       1、灭弧原理
      VFM是中压领域的自能灭弧式(旋弧、热膨胀和助吹)六氟化硫断路器。开断大电流时,采用旋弧和热膨胀灭弧效应:开断小电流时,用活塞助吹,弥补旋弧和热膨胀效应的不足,不产生截流过电压。
      2、报警、闭锁原理
      VFM断路器使用设备和材料(尤其是密封剂)加工而成,零件精度高,密封性能好。密封件具有较强的抗腐蚀、抗撕裂、抗老化和抗压缩变形性能,耐热、耐寒性佳,完全满足年漏气率小于0.5%的技术要求。

 
       VFM断路器上安装有SF6气体密度继电器,该继电器以SF6气体经温度补偿后(20℃)的压力来表示的,不随环境温度而变化。标准温度(20℃)时,断路器内部SF6气体压力值为表压值,额定压力值为0.65MPa,报警压力为0.62MPa,闭锁压力为0.59MPa。当断路器因意外原因造成内部SF6气体压力低于报警压力时,高压开关设备将发出报警声,此时电站值班人员应对断路器补气至额定压力值;当SF6气体压力低于闭锁压力时,断路器分、合闸回路闭锁,断路器拒绝分、合闸。

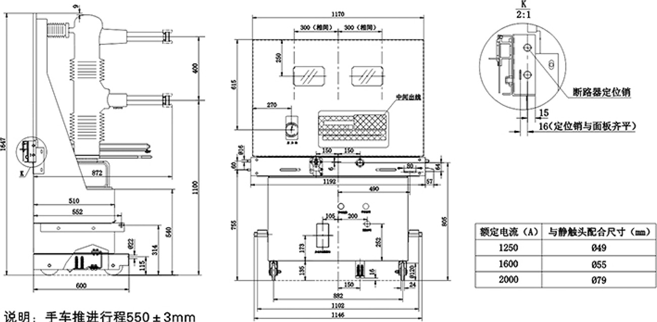
断路器外形尺寸及电气原理图


下一篇:没有了